Portfolio & Floor Plans

Professionally managed co-living properties in Philadelphia

Our portfolio consists of 64+ doors across multiple properties in Philadelphia. Each property is carefully renovated, fully furnished, and professionally managed for optimal co-living functionality.

Co-Living Property Floor Plans

Detailed architectural floor plans showing optimized layouts for co-living properties

Co-living property floor plan - 1700

Floor Plan - 1700

Multi-level co-living property floor plan showing optimized layout with multiple units, bedrooms, and shared common areas.

  • Type: Multi-unit floor plan
  • Layout: Optimized for co-living
  • Features: Multiple bedrooms, shared spaces
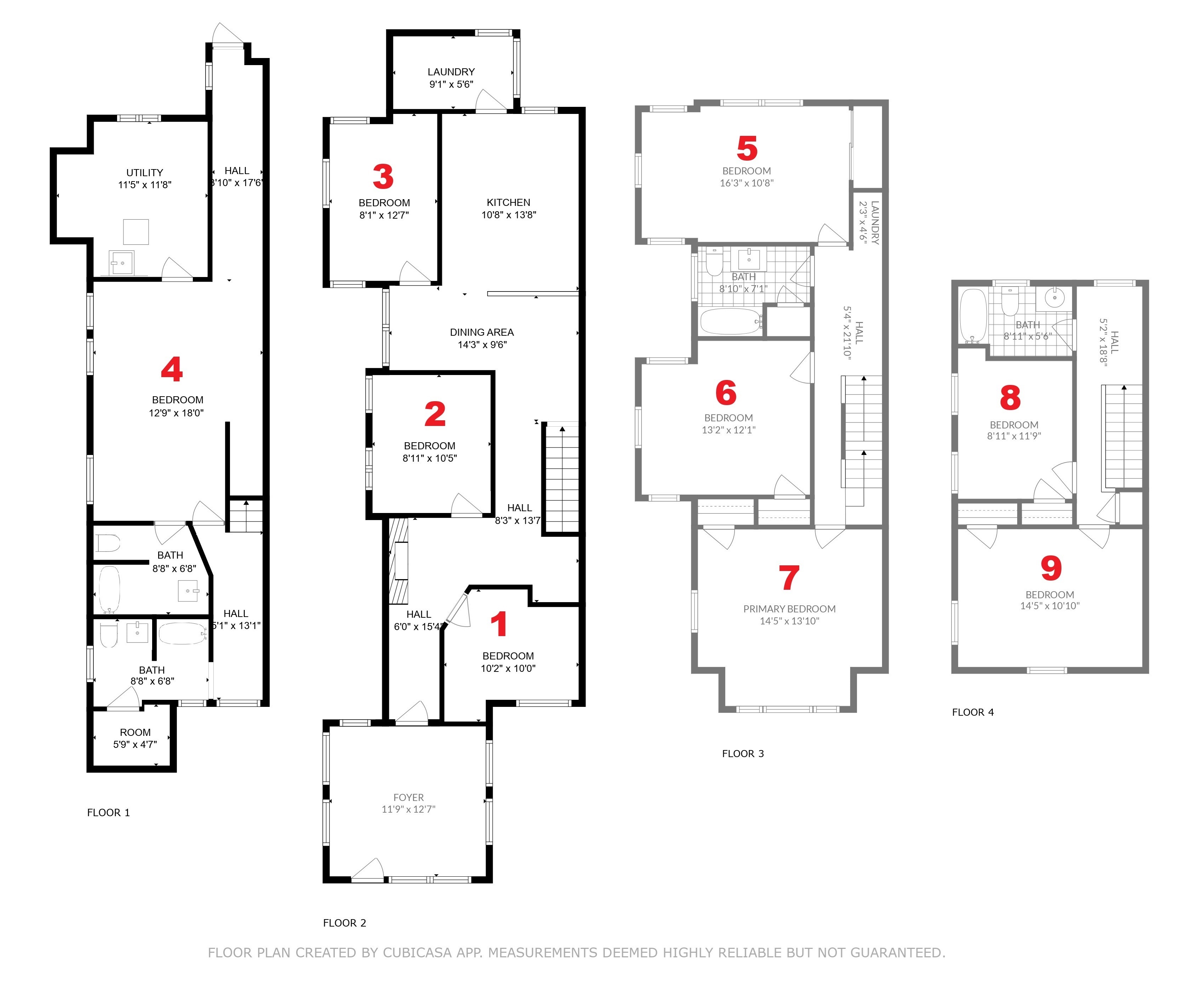
Co-living property floor plan - 1925

Floor Plan - 1925

Multi-story floor plan showing detailed bedroom configurations, bathrooms, and shared common areas across multiple levels.

  • Type: Multi-story floor plan
  • Layout: 4 floors with shared spaces
  • Features: Multiple bedrooms per floor
Co-living property floor plan - 2129

Floor Plan - 2129

Two-level floor plan with basement, showing main floor and basement layouts designed for co-living efficiency.

  • Type: Two-level with basement
  • Layout: Main floor + basement
  • Features: Multiple bedrooms, shared areas
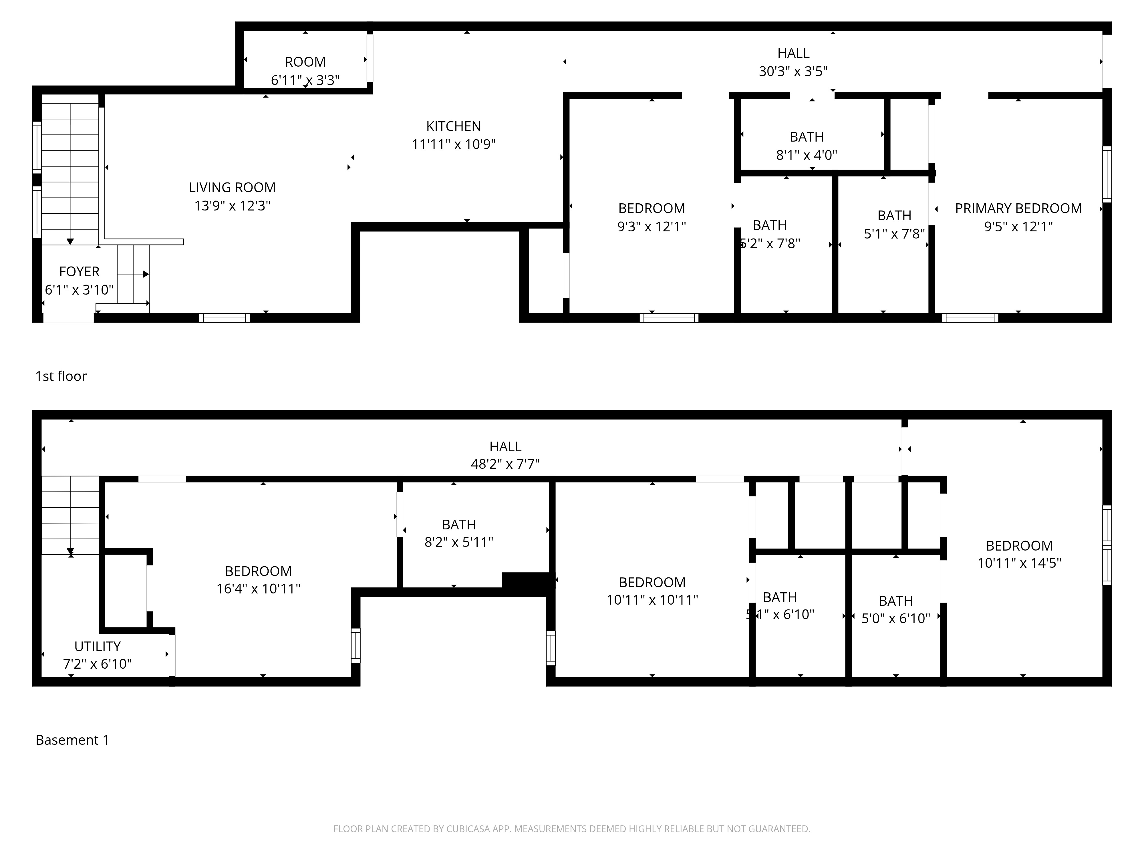
Co-living property floor plan - 5122

Floor Plan - 5122

Comprehensive multi-story floor plan showing complete property layout with bedrooms, bathrooms, kitchens, and common areas across all floors.

  • Type: Multi-story floor plan
  • Layout: Multiple floors
  • Features: Complete room distribution

Floor Plan Transformation

See how floor plans are optimized during renovation from acquisition to move-in ready co-living spaces.

Floor plan before renovation

Floor Plan - Before Renovation

Original floor plan at acquisition, showing the layout before co-living optimization and renovation.

  • Stage: Pre-renovation floor plan
  • Condition: Original layout
  • Potential: Ready for co-living conversion
Floor plan after renovation

Floor Plan - After Renovation

Optimized floor plan after renovation, showing the transformed layout designed for co-living with improved room distribution and shared spaces.

  • Renovation: Optimized layout
  • Design: Co-living focused
  • Quality: Professional standards

Portfolio Overview

Property Types

Multi-unit properties optimized for co-living, ranging from 3-6 bedrooms per unit with shared common areas.

Location Strategy

Properties located in Philadelphia neighborhoods with strong demand for workforce housing and proximity to employment centers.

Renovation Standards

Complete renovation including modern finishes, updated systems, and professional furnishing for optimal tenant experience.

Management Approach

Hands-on professional management ensuring quality tenant relations, maintenance, and consistent operations across all properties.

View Investment Opportunities

Interested in learning more about our portfolio and investment opportunities? Schedule a call to discuss available properties and investment structures.

View Investment Opportunities
Ready to invest? Book a Call